西岛Saint-Lazare大平房,超低地税,完整两套适合两代人居住

Pine Tree Rue, Saint-Lazare, QC J7T 2J3 地图周边 | 社区结构
西岛Saint-Lazare大平房,超低地税,完整两套适合两代人居住
Pine Tree Rue, Saint-Lazare, QC J7T 2J3
地图周边 | 社区结构
售价 (加元)
$849,500
格局
3+2卧 3浴
2客厅 2餐厅 1+1厨房
物业类型
独立屋

物件说明 - iU91 ID: 143038

  • 物件状态现房
  • 停车情况 三车库 4个以上室外车位
  • 交易方式 经纪代理
  • 建造年份 1987年建
  • 使用面积 约2218平方尺
  • 占地面积 约24101平方尺
  • 市政估价 $750900
  • 房地产税 地税$3862/年
  • 学 校 税 学校税$404/年
  • iU91编号 143038
  • MLS编号9063531
  • 附属设施 空调 全部电器
  • 附近高速 近高速公路 - 40 - 约2分钟车程

特色说明

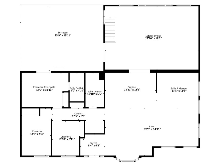
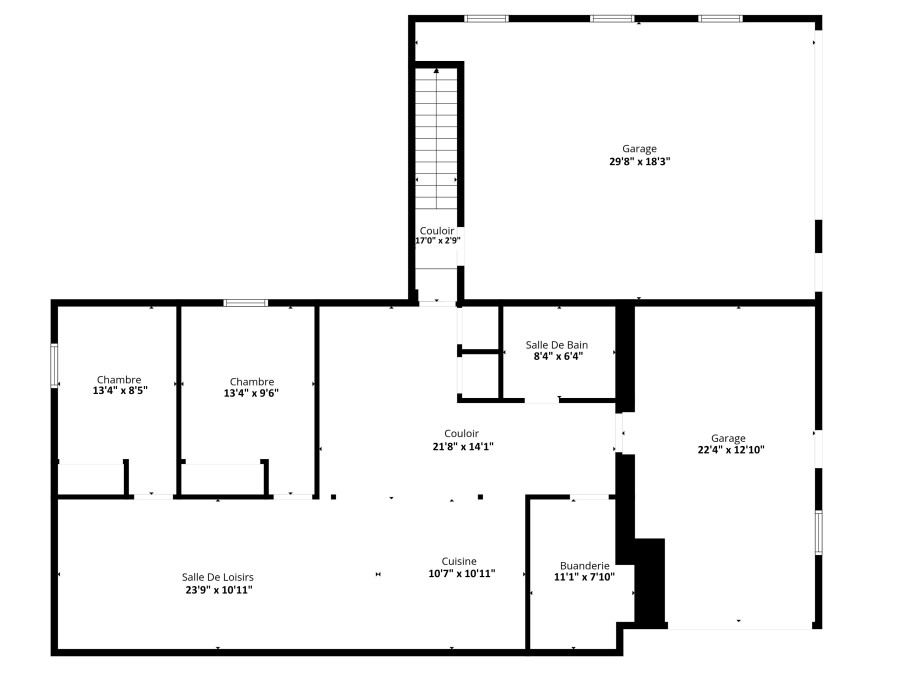
西岛Saint-Lazare大平房,距40号高速1.5公里,驾车出行便利。土地面积逾24000呎,林木掩映,世外桃源。

两套完整住宅有各自的厨、卫、洗衣房、车库,适合两代人居住。一层2218呎3卧2卫带地下双车库,地下室2卧一卫带单车库。全新现代风格装修,即买即住。

地图周边

Pine Tree Rue, Saint-Lazare, QC J7T 2J3

社区结构2021年人口统计数据

人口统计

总计男性女性
2021年该地区人口数量 4,382 ... ...
2016年该地区人口数量 4,278 ... ...
2006年到2011年该地区人口变化率 2.4 ... ...
个人住宅数量 1,502 ... ...
正常使用的个人住宅数量 1,477 ... ...
每平方公里人口密度 184.4 ... ...
该地区土地面积(平方公里) 23.77 ... ...

房价租金统计

总计男性女性
平均房价 ($) 615,500 ... ...
养房开销(包括税,贷款,水电煤,管理费) ($) 1,660 ... ...
有房屋贷款的居民比例 (%) 64.3 ... ...
租房开销(包括租金,水电煤,服务费) ($) 880 ... ...
独立房 1,460 ... ...
公寓(5层以上大楼) 0 ... ...
半独立屋 0 ... ...
排屋 0 ... ...
Duplex里的公寓 5 ... ...
公寓(4层以下大楼) 5 ... ...
其他独立住宅 0 ... ...
临时房 0 ... ...

收入统计

总计男性女性
2020年家庭平均收入 159,800 ... ...
2020年家庭平均税后收入 124,100 ... ...
家庭平均人口 3.2 ... ...
2020年无子女的家庭平均收入 126,000 ... ...
2020年无子女的家庭平均税后收入 97,600 ... ...
无子女的家庭平均人口 2.0 ... ...
2020年有子女家庭平均收入 193,200 ... ...
2020年有子女家庭平均税后收入 149,200 ... ...
有子女家庭平均人口 4.1 ... ...
2020年单亲家庭平均收入 108,000 ... ...
2020年单亲家庭平均税后收入 86,000 ... ...
单亲家庭平均人口 2.7 ... ...

语言统计

总计男性女性
只说英语的人数 750 350 400
只说法语的人数 270 145 130
可以说英法语的人数 3,355 1,700 1,650
不懂法语和英语的人数 15 5 5

族裔统计

总计男性女性
南亚人 15 10 0
中国人 110 40 70
黑人 75 40 40
菲律宾人 25 10 15
阿拉伯人 30 15 15
拉丁美洲人 75 25 50
东南亚人 30 15 20
西亚人 0 0 0
韩国人 0 0 0
日本人 0 0 0
其他民族 15 10 0
属于多个民族的后裔 45 20 20
非少数民族 3,925 2,015 1,910

职业统计

总计男性女性
立法和高级管理职位 110 85 25
商业,金融和行政 475 150 320
自然和应用科学领域工作 260 205 55
卫生保健行业 120 15 105
教育,法律,社区和政府工作 225 80 145
艺术,休闲,文化和体育行业 125 30 90
销售和服务性行业 635 325 310
技术工人,运输业,操作工及相关行业 380 345 30
自然资源,农业及相关行业 35 25 10
加工行业和公共事业 40 30 10

您最近访问的物业

发布人信息

留言问答

会员登录后可以留言

附近物件 点击查看更多周边房源

×
分类查询

售价 849,500$加元


联系发布人
顶部
底部
×
分类查询